г. Волковыск, ул. Калинина 3
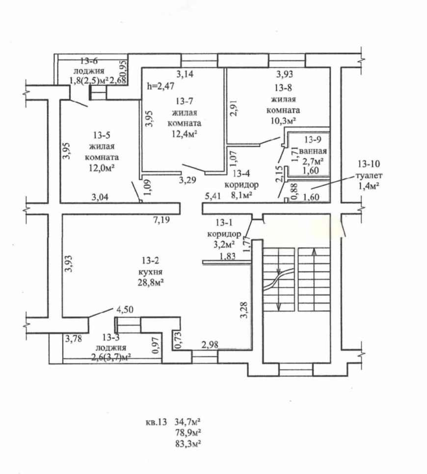
| Кол-во комнат | 3 |
| Площадь общая | 79м² |
| Этаж/Этажность | 2/5 |
| Год постройки | 1986 |
| Тип здания | кирпичный |
| Санузел | раздельный |
| Балкон | два |
Продаётся отличная квартира с качественным ремонтом и законной перепланировкой.
Кухня объединена с гостинной, что не только увеличивает пространство, но и придаёт жилью особый стиль.
При ремонте применялись качественные отделочные материалы, и приглашались хорошие специалисты.
В квартире три жилых комнаты, раздельный санузел, две лоджии, встроенный шкаф. Установлены хорошие окна, балконные рамы, двери.
Данный объект недвижимости принадлежит юридическому лицу. До продажи проводилась независимая оценка рыночной стоимости.
Цена соответствует рынку и торг не приветствуется.
Цена зафиксирована в белорусских рублях!!!
Продаётся вместе с мебелью и предметами интерьера (по перечню).
Осмотр по предварительной договоренности.
Для покупателя сопровождение сделки аттестованным риэлтером - БЕСПЛАТНО.
Оставьте заявку на консультацию специалиста по недвижимости:
Ваше сообщение успешно отправлено! Менеджер свяжется с вами в ближайшее время.