Дом возле леса

Дом возле леса
Дом возле леса
Дом возле леса
Дом возле леса
Дом возле леса
Дом возле леса
Дом возле леса
Дом возле леса

Дом возле леса

г. Гродно, ул. Погоранская, 20

337000р. 119500$
Кол-во комнат
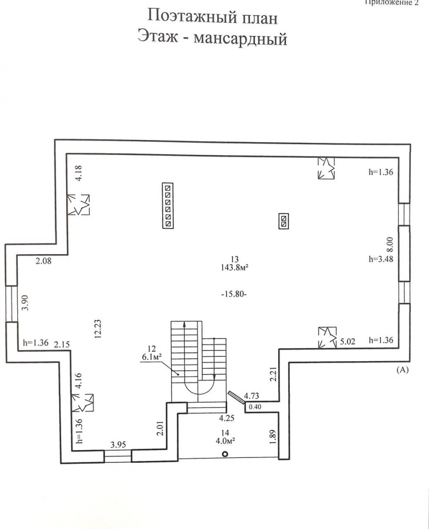
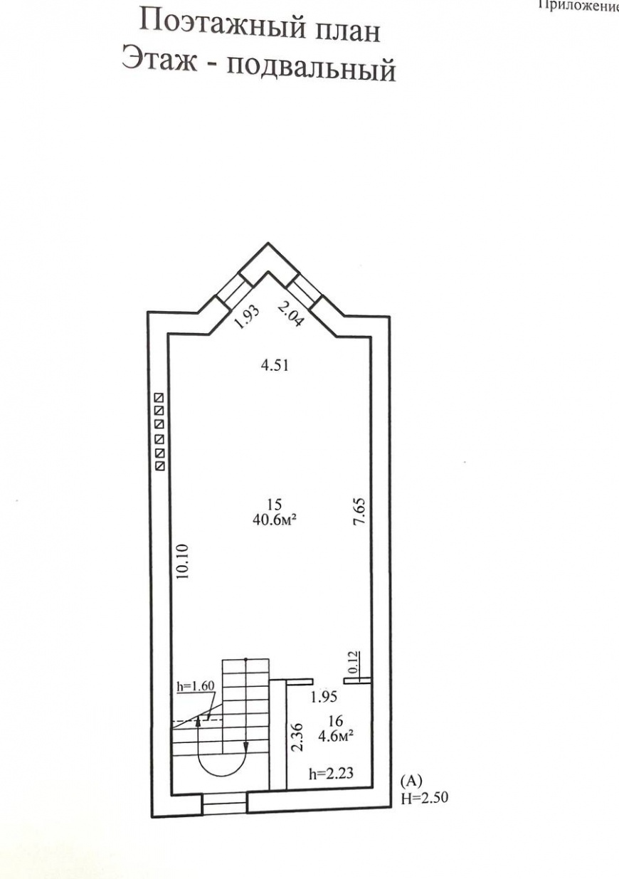
Площадь общая 324.7м²
Этаж/Этажность 2
Год постройки
Тип здания блочный
Санузел
Балкон
Отопление газовое
Электричество есть
Газ есть
Вода центральная
Канализация центральная
Площадь участка 12.27 соток
Готовность 74%
Описание

Продается перспективный объект незавершенного строительства (дом под крышей) в м-не Погораны.

Первая линия у леса!

Дом мансардного типа в стадии незавершенного строительства. Это отличная возможность для тех, кто хочет создать дом своей мечты с учетом индивидуальных планировок и отделки, сэкономив время и средства на самой сложной стадии — возведении коробки.

Помимо основного дома на участке расположены гараж, хозпостройка с возможностью переоборудования под баню (коммуникации введены)

Что уже сделано (готовность 74%):

1. Фундамент: железобетонные блоки
2. Коробка: возведены стены из газосиликтных блоков , утеплены и оштукатурены.
Перекрытия - ж/б плиты.
3. Кровля: смонтирована стропильная система, покрыта металлочерепицей с шумопоглащением.
4. Окна и двери: установлены окна ПВХ и входная дверь.
5. Коммуникации :
Смонтирована электропроводка в доме и в хозблоке.
Газ, вода в доме.
Центральная канализация.

Участок:

12,27 сотки в праве пожизненного наследуемого владения.

· Все самые сложные и дорогостоящие этапы строительства уже позади.
· Полный пакет проектной документации.
· Чистые юридические документы: право собственности на землю и на объект незавершенного строительства.
· Участок в живописном, тихом месте с хорошей транспортной доступностью.
· Возможность закончить строительство в кратчайшие сроки.

Возможна покупка с использованием кредита.

Звоните, чтобы договориться о просмотре.

Данные специалиста

+375 (33) 620 21 39

grodnenskoe.fv@gmail.com

У вас есть вопросы?

Оставьте заявку на консультацию специалиста по недвижимости:

Отправляя форму, вы соглашаетесь с политикой конфиденциальности