д. Гумбачи, 20
| Кол-во комнат | 5 |
| Площадь общая | 345м² |
| Этаж/Этажность | 2 |
| Год постройки | 2012 |
| Тип здания | кирпич |
| Санузел | |
| Балкон | |
| Отопление | Твердотопливное |
| Электричество | есть |
| Газ | есть |
| Вода | скважина |
| Канализация | септик |
| Площадь участка | 70 соток |
| Готовность | 100% |
Для жизни и для бизнеса! Дом-усадьба около Гродно в живописном месте, д.Гумбачи, 9 км в направлении Поречья.
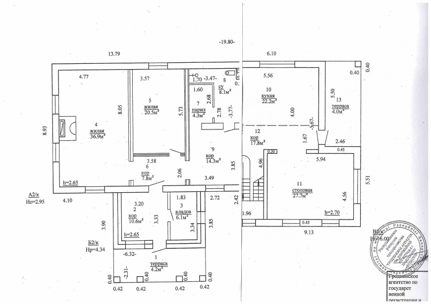
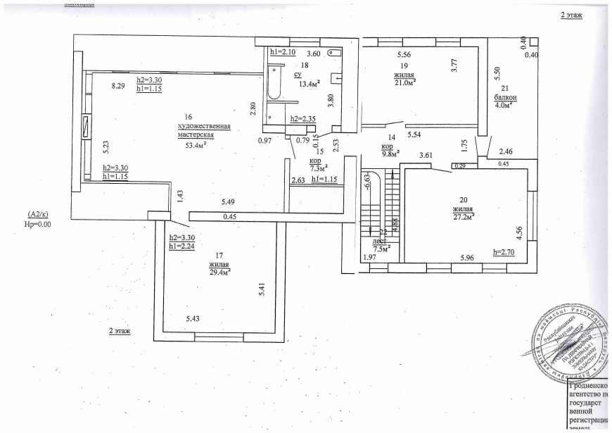
Дом построен из кирпича, с утеплением. Общая площадь - 345 м², жилая - 216. Два уровня, высокая в полноценный этаж мансарда, высота потолка 3.30 м.
Семь просторных комнат. Гостиная 36.9 м² с камином. Кухня 22,2 м² с выходом на закрытую террасу. Художественная мастерская 53.4 м².
На первом этаже сауна. Два санузла - на каждом этаже - 8.1 и 13.4 м².
Отопление твердотопливным котлом. Современная линия электропередачи позволяет установить электрический.
Вода из собственной скважины, канализация местная.
Устойчивый прием мобильной связи с 4G.
Участок в частной собственности, 70 соток (25 под жилую+45 ЛПХ). Выровнен. Огорожен забором и лесом по периметру. Двое въездных ворот.
Хозяйственное строение из кирпича, площадью 92 м², там же котельная.
Погреб 15 м² для хранения овощей и продуктов.
Асфальтированный подъезд практически до самого дома.
Купив нашу усадьбу, вы поймете, что всегда мечтали жить в таком живописном месте. Имеющиеся преимущества дают возможность для ведения любого прибыльного бизнеса. Жить с семьей и тут же заниматься предпринимательством – мечта любого хозяйственного человека.
Природная красота, удобное расположение и абсолютная приватность – вдали от соседей и в окружении леса, рядом пруд с гнездовьем диких уток и гусей. Дом-агроусадьба со всеми удобствами многие годы сдавался в аренду и приносил хорошую прибыль. Большой приусадебный участок с плодовыми деревьями, кустарниками, хозяйственными постройками. Хорошая коммуникация с городом – асфальтированная дорога, автобусы, маршрутки.
Возможна покупка с банковским кредитом.
Рассматриваем обмен/зачет вашей квартиры и другой недвижимости.
Разумный торг заинтересованному покупателю.
Звоните за дополнительной информацией и договориться на просмотр вашего нового дома!
Оставьте заявку на консультацию специалиста по недвижимости:
Ваше сообщение успешно отправлено! Менеджер свяжется с вами в ближайшее время.